• HOME
  • PORTFOLIO
  • ÜBER UNS
    • PROFIL
    • TEAM
    • MITARBEIT
    • AUSZEICHNUNGEN / PUBLIKATIONEN
    • KUNDEN / REFERENZEN
  • KONTAKT
  • HOME
  • PORTFOLIO
  • ÜBER UNS
    • PROFIL
    • TEAM
    • MITARBEIT
    • AUSZEICHNUNGEN / PUBLIKATIONEN
    • KUNDEN / REFERENZEN
  • KONTAKT
  • Alle
  • ARZTPRAXIS & KLINIK
  • BÜRO & VERWALTUNG
  • PRAXEN | REHA
  • RETAIL DESIGN & GASTRO
  • UMBAU & SANIERUNG
  • WOHNEN

ORTHOPÄDIE

PRAXEN | REHA

ALLGEMEINMEDIZIN | CHIROPRAKTIK

PRAXEN | REHA

AUGENZENTRUN FÜRSTENFELDBRUCK

ARZTPRAXIS & KLINIK

Innenarchitektur: Praxis & Klinik für Augenheilkunde

ALLGEMEINMEDIZIN

PRAXEN | REHA

AUGENHEILKUNDE | OP

PRAXEN | REHA

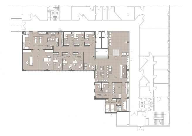
RADIOLOGIE | PHYSIOTHERAPIE

PRAXEN | REHA

ORTHOPÄDIE

PRAXEN | REHA

SPORTMEDIZIN | REHA

PRAXEN | REHA

Innenarchitektur: Spoorth Leipzig

AUGENHEILKUNDE

PRAXEN | REHA

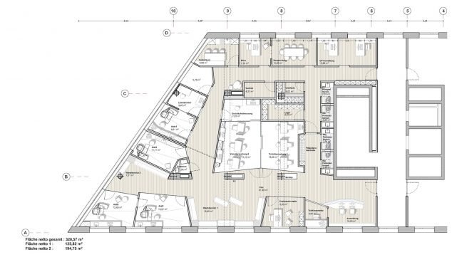
ORTHOPÄDIE | RADIOLOGIE

PRAXEN | REHA

AUGENHEILKUNDE

PRAXEN | REHA

SANITÄTSHAUS | REHA

PRAXEN | REHA

AUGENHEILKUNDE | 04

PRAXEN | REHA

AUGENHEILKUNDE

PRAXEN | REHA

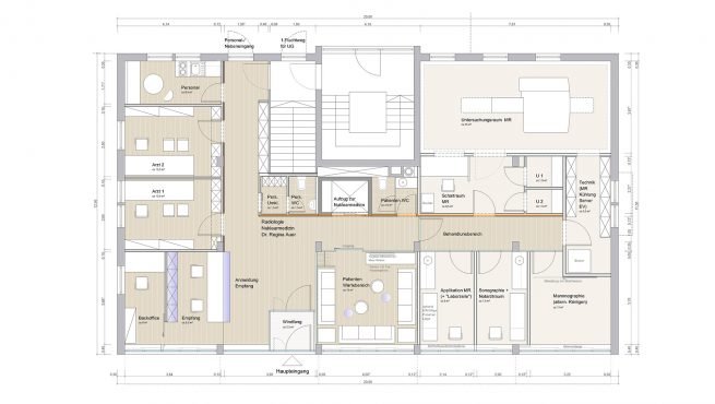
RADIOLOGIE | NUKLEARMEDIZIN

PRAXEN | REHA

KINDERHEILKUNDE | REHA

PRAXEN | REHA

„GRÜNES HAUS“ AM GARDASEE

UMBAU & SANIERUNG , WOHNEN

mhp | Architekten Innenarchitekten: Haus am Gardasee

SANITÄTSHAUS | REHA

PRAXEN | REHA

SMILE EYES AUGENKLINIK

ARZTPRAXIS & KLINIK

Innenarchitektur: Smile Eyes Augenklinik, Airport München

MARKTPLATZ MASSING

UMBAU & SANIERUNG , WOHNEN

mhp | Architekten Innenarchitekten: Variante,

WOHNHAUS IN FREIMANN

UMBAU & SANIERUNG , WOHNEN

mhp | Architekten Innenarchitekten: Variante, Wohnhaus München-Freimann

ALTBAUWOHNUNG MÜNCHEN SCHWABING

UMBAU & SANIERUNG , WOHNEN

Altbauwohnung Umbau & Sanierung

WOHNHAUS IN NYMPHENBURG

UMBAU & SANIERUNG , WOHNEN

mhp | Architekten Innenarchitekten: Wohnhaus Be

BÜROGEBÄUDE IN MÜNCHEN

BÜRO & VERWALTUNG

mhp | Architekten Innenarchitekten: Rendering Bürogebäude München

PRAXIS FÜR PLASTISCHE CHIRURGIE

ARZTPRAXIS & KLINIK

Innenarchitektur: Praxis für plastische Chirurgie

AUGENARZTPRAXIS ROSENHEIM

ARZTPRAXIS & KLINIK

Innenarchitektur: Praxis Augenarzt Huber

VOLLCORNER FIRMENZENTRALE

BÜRO & VERWALTUNG

Innenarchitektur: Verwaltung VollCorner, München

BÜRO & VERWALTUNG , RETAIL DESIGN & GASTRO

Architektur & Innenarchitektur: Byodo Naturkost 01x

WOHNBEBAUUNG K.

WOHNEN

mhp | Architekten Innenarchitekten: Niederbayern Wohnbebauung 03

BIOLADEN & VERWALTUNGSBAU

BÜRO & VERWALTUNG , RETAIL DESIGN & GASTRO

Architektur & Innenarchitektur: Byodo Feinsinn 02

FERIENHHAUS IN ITALIEN

UMBAU & SANIERUNG , WOHNEN

Architektur & Innenarchitektuer Wohnhaus in Ligurien

BOGNER STORE DÜSSELDORF

RETAIL DESIGN & GASTRO

Innenarchitektur: Showroom Bogner Düsseldorf 01

WOHNHAUS K.

WOHNEN

Architektur & Innenarchitektur: Architektur: Wohnhaus K. 09

UMBAU WOHNHAUS E. A.

UMBAU & SANIERUNG , WOHNEN

Architektur: Umbau Wohnhaus E.A.

INNENARCHITEKTUR VERWALTUNG

BÜRO & VERWALTUNG

mhp | Architekten Innenarchitekten: Wettbewerb Verwaltung

SHOWROOM ENGELHARD GRUPPE

RETAIL DESIGN & GASTRO

Showroom Engelhard Gruppe 03

BÜRO & VERWALTUNG

Architekur & Innenarchitektur - mhp | Architekten Innenarchitekten: HDG Bavaria 11

BÜRO & VERWALTUNG

Travian Beitrag

BOGNER STORE KEITUM

RETAIL DESIGN & GASTRO

Innenarchitektur: Bogner Store Sylt 01

WOHNHAUS AM AMMERSEE

WOHNEN

Innenarchitektur & Architektur: Wohnhaus am Ammersee 01

BETTE DESIGN WETTBEWERB

WOHNEN

Innenarchitektur Design Wettbewerb Bette

ORTHOPÄDIESCHUHTECHNIK REHA-AKTIV

ARZTPRAXIS & KLINIK , RETAIL DESIGN & GASTRO

Innenarchitektur Rendering Orthopädie Schuhtechnik

AUGENARZTPRAXIS SMILE EYES

ARZTPRAXIS & KLINIK

Innenarchitektur: Praxis Augenarzt Smile Eyes 01

RETAIL DESIGN & GASTRO

Showroom Bogner Salzburg 01

FIRMA ACKERMANN HKS

BÜRO & VERWALTUNG

mhp | Architekten Innenarchitekten: Firmengebäude Ackermann HKS

RUSTICO IN ITALIEN

UMBAU & SANIERUNG , WOHNEN

Architektur: Perspektive, Ferienhaus Terracina

RETAIL DESIGN & GASTRO

Innenarchitektur: Bogner Flagshipstore Stuttgart

WOHNHAUS O. K.

UMBAU & SANIERUNG , WOHNEN

Architektur: Umbau Haus Ke 01

PRAXIS ORTHOPÄDIE AM GASTEIG

ARZTPRAXIS & KLINIK

Praxis Orthopädie am Gasteig 07

HOLTHAUS MODE OSNABRÜCK

RETAIL DESIGN & GASTRO

Holthaus Moden Beitrag

WOHNHAUS E.

WOHNEN

Architektur: Wohnhaus E. 04

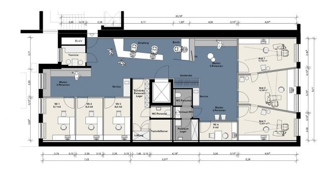
PRAXIS FÜR RADIOLOGIE UND NUKLEARMEDIZIN

ARZTPRAXIS & KLINIK

Praxis für Radiologie und Nuklearmedizin 08

SHOWROOM GEBÄUDE BOGNER

BÜRO & VERWALTUNG , RETAIL DESIGN & GASTRO

Verwaltungsgebäude Bogner 05

WINTERGARTEN – HAUS B. MÜNCHEN

UMBAU & SANIERUNG , WOHNEN

Architektur Anbau Wohnhaus B. Wintergarten 06

ARZTPRAXIS & KLINIK , RETAIL DESIGN & GASTRO

Innenarchitektur: Reha Aktiv 06

WOHNHAUS A.M.

UMBAU & SANIERUNG , WOHNEN

Architektur & Innenarchitektur: Wohnhaus A.M. 03

OCM KLINIK

ARZTPRAXIS & KLINIK

Innenarchitektur: OCM Klinik 01

KIND-AKTIV ZENTRUM

ARZTPRAXIS & KLINIK , RETAIL DESIGN & GASTRO

Kind-Aktiv Zentrum 01

ARZTPRAXIS & KLINIK , RETAIL DESIGN & GASTRO

Spoorth 02

BOGNER STORE FRANKFURT A. M.

RETAIL DESIGN & GASTRO

Innenarchitektur: Bogner Flagship Store Frankfurt

ARZTPRAXIS & KLINIK , RETAIL DESIGN & GASTRO

Innenarchitektur: Rendering Spoorth Leipzig

UMBAU WOHNUNG J.

UMBAU & SANIERUNG , WOHNEN

Innenarchitektur: Umbau Wohnung J.

MODEHAUS KÖLN

RETAIL DESIGN & GASTRO

Modehaus Köln 01

SHOWROOM FÜR FLIESEN UND NATURSTEIN

RETAIL DESIGN & GASTRO

Showroom Fliesen und Naturstein 02

JEANS KALTENBACH

RETAIL DESIGN & GASTRO

Innenarchitektur: Kaltenbach Konzept Store 02

PRAXIS FÜR ORTHOPÄDIE UND ALLGEMEINMEDIZIN

ARZTPRAXIS & KLINIK

Innenarchitektur: Praxis G. 01

UMBAU WOHNHAUS B.

UMBAU & SANIERUNG , WOHNEN

BOGNER OUTLETSTORE BERNAU

RETAIL DESIGN & GASTRO

Innenarchitektur: Bogner Outletstore 05

BOOTSHÄUSER AUF SEEGRUNDSTÜCK INNING

WOHNEN

Wohnhaus am See 01

RETAIL DESIGN & GASTRO

Innenarchitektur: Bogner Innsbruck Flagshipstore 01

BOGNER STORE KÖLN

RETAIL DESIGN & GASTRO

Bogner Flagshipstore Köln 01

SHOWROOM ISARIA WOHNBAU AG

BÜRO & VERWALTUNG , WOHNEN

Innenarchitektur: Showroom Isaria 03

BOGNER STORE MÜNCHEN

RETAIL DESIGN & GASTRO

Bogner Flagshipstore München 03

GASTRONOMIE KONZEPT

RETAIL DESIGN & GASTRO

Gastro Konzept 03

BOGNER STORE BERLIN

RETAIL DESIGN & GASTRO

Bogner Flagshipstore Berlin 02

RETAIL DESIGN & GASTRO

Innenarchitektur: Bogner Flagshipstore Düsseldorf 04

HIPP VERWALTUNG

BÜRO & VERWALTUNG

Architektur: HiPP Verwaltung 01

BOGNER STORE HAMBURG

RETAIL DESIGN & GASTRO

Innenarchitektur: Bogner Store Hamburg 03

HIPP PAVILLON

BÜRO & VERWALTUNG

HiPP Pavillion 02

CONDÉ NAST VERLAG

BÜRO & VERWALTUNG

Condé Nast Verlag Lenbachgärten 01

OSRAM LICHTWELT

BÜRO & VERWALTUNG

Architektur: Osram Lichtwelt 03

CONDÉ NAST VERLAG LEOPOLDSTRASSE

BÜRO & VERWALTUNG

Innenarchitektur: Condé Nast Verlag
Mehr anzeigen Alle Einträge geladen
. . .

Jakob-Klar-Str. 4
80796 München
089 2880 623-0

[email protected]

Marktplatz 16
84323 Massing
08724 910091

[email protected]

  • HOME
  • PORTFOLIO
  • PROFIL
  • KONTAKT & IMPRESSUM

© mhp 2025
Datenschutzerklärung