Praxis für Augenheilkunde mit ambulantem OP-Bereich · 753 m²
AUGENZENTRUN FÜRSTENFELDBRUCK
UNSERE LEISTUNGEN
Entwurf
Planung
Gestalterische Oberleitung
Die Innenarchitektur verbindet ein eigenständiges, selbstbewusstes Erscheinungsbild mit effizienten Funktionsabläufen und klarer Orientierung für PatientInnen und MitarbeiterInnen.
Entwurfskonzept
Grundlage ist eine tragfähige Gestaltungsidee, die das umfangreiche und spezialisierte Raumprogramm technisch-funktional umsetzt. Grundrissorganisation, Farb- und Materialwahl sowie das Lichtkonzept unterstützen die Entwurfskriterien und fördern das Wohlbefinden der PatientInnen und unterstützen die Arbeits- und Aufenthaltsqualität aller MitarbeiterInnen.
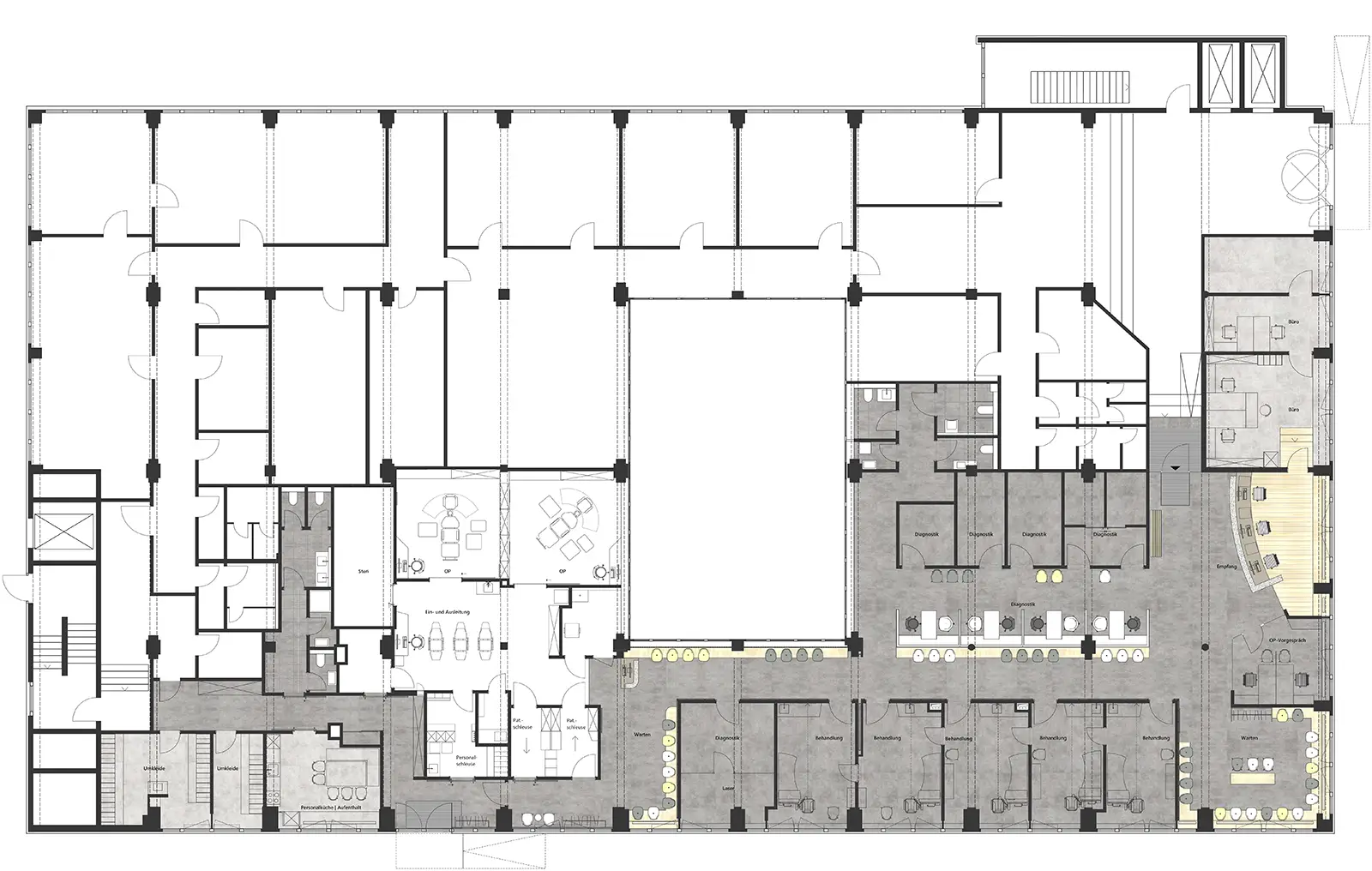
Grundriss und Raumorganisation
Ausgehend vom offenen Eingangsbereich mit Empfang gliedern drei in Längsrichtung angeordnete Raumstrukturen die Fläche der Nutzungseinheit 1. Entlang der Südfassade verläuft eine Raumeinheit mit sechs Untersuchungs-/Behandlungsräumen. Dieser Bereich begleitet den gesamten offenen Flur, in dem auch Zwischenwartebereiche angeordnet sind. Die zentrale Wirkung dieser Raumabfolge, die flur- und atriumbegleitend die beiden Funktionsbereiche Praxis und OP verbindet, wird durch eine horizontal gegliederte Wandverkleidung unterstützt.
Parallel dazu befindet sich eine halboffene, teilweise satiniert verglaste Zone mit vier Diagnostikplätzen, an die sich vier weitere, abgeschlossene Diagnostikräume anschließen.
Material- und Farbkonzept
Die Materialwahl unterstützt die Entwurfskriterien und erzeugt eine großzügige, einladende Raumwirkung. Verwendet wurden kanadischer Ahorn für Wandverkleidungen, Brüstungen und Wartebereiche, beschichteter Estrich, sowie satinierte Glasflächen bei Trennwänden und Türen mit einem Schallschutz von 37 dB, sowie HPL- und Mineralwerkstoffe in zurückhaltenden Weiß- und Grautönen.
OP-Bereich
Der OP-Bereich (Raumklasse 1b nach RKI) in Nutzungseinheit 2 erfüllt alle funktionalen und hygienetechnischen Anforderungen. Das Materialkonzept besteht aus ableitfähigem Bodenbelag, satinierten Glasflächen sowie HPL- und Mineralwerkstoffen in weißen Farbtönen.






















