OCM KLINIK
ARZTPRAXIS & KLINIK
Im Rahmen eines Erweiterungsbaus der SANA-Klinik München-Sendling entstanden Praxis und Verwaltungsräume für die OCM-Klinik GmbH (Orthopädisches Chirurgiezentrum München) mit Röntgen-, Radiologie- und ambulantem OP-Bereich.
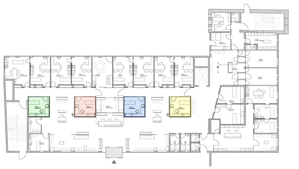
Trotz des für einen Praxisbetrieb großen Flächenbedarfs von ca. 800 m² im EG und ca. 190 m² im UG sollte eine für den Patienten möglichst überschaubare und einladende Atmosphäre entstehen. Deshalb wurden sämtliche öffentlichen Bereiche als Großraum mit unterschiedlichen Warte- und Empfangsbereichen konzipiert.
Der wesentliche Raumeindruck wird geprägt von den in hellen Farbtönen gestalteten Wandflächen der 4 Behandlungsräume. Die unterschiedliche Farbgebung signalisiert jeweils den Funktionsbereich ähnlich einer Einzelpraxis. Dadurch wird für den Patienten eine gute Orientierbarkeit mit kurzen Wegen erreicht, was einen reibungslosen Praxisbetrieb gewährleistet.
UNSERE LEISTUNGEN
Entwurf
Planung
Bauleitung






