PRAXIS FÜR ORTHOPÄDIE UND ALLGEMEINMEDIZIN
ARZTPRAXIS & KLINIK
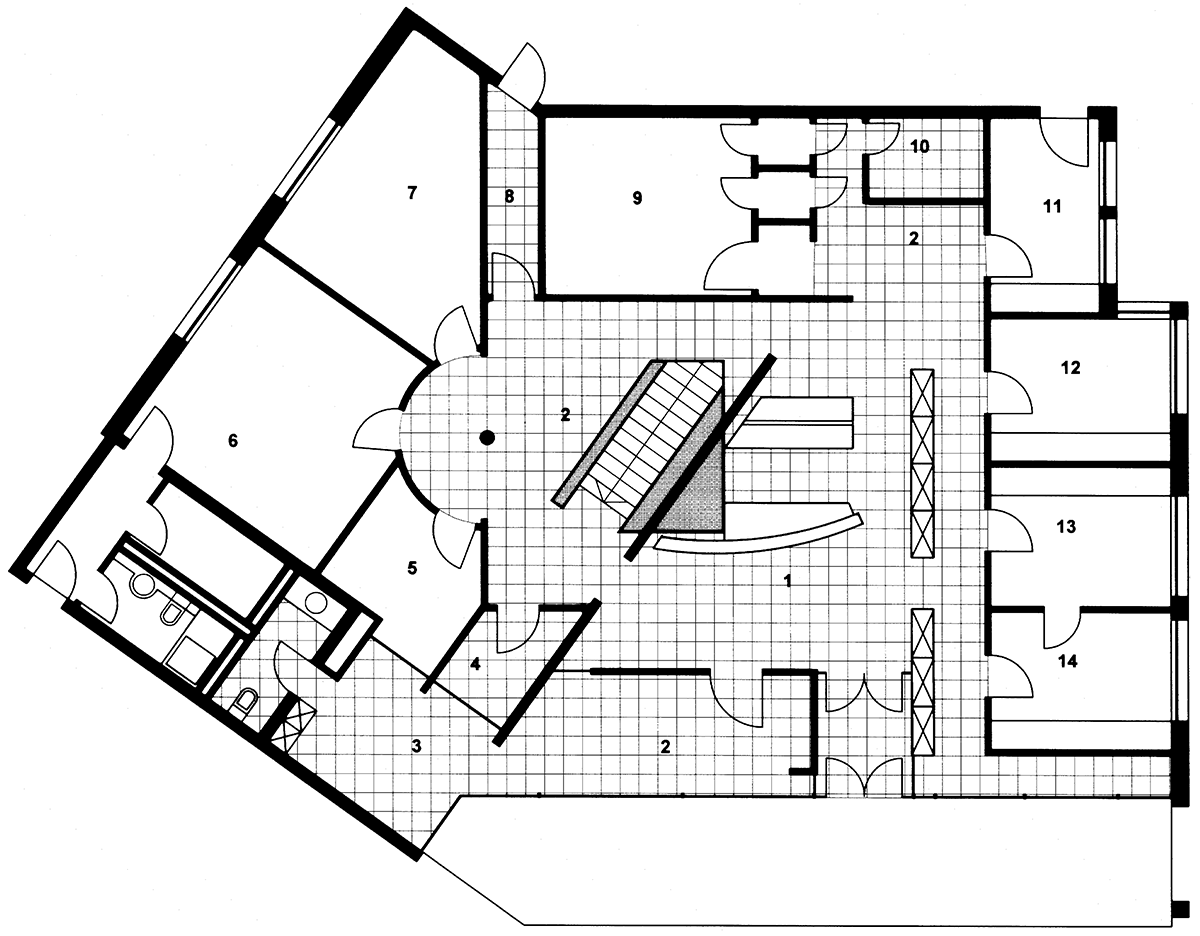
Auf einer Fläche von 180 m² wurde eine Gemeinschaftspraxis für Orthopäden und Allgemeinärzte realisiert. Die Behandlungsräume sind um einen zentralen Empfang mit Wartebereich gruppiert. Durchblicke ermöglichen Orientierung und bieten Großzügigkeit trotz begrenzter Fläche.
Zwei unterschiedliche Leitfarben indizieren die unterschiedlichen Nutzungen.
UNSERE LEISTUNGEN
Entwurf
Planung
Bauleitung


