• HOME
  • PORTFOLIO
  • ÜBER UNS
    • PROFIL
    • TEAM
    • MITARBEIT
    • AUSZEICHNUNGEN / PUBLIKATIONEN
    • KUNDEN / REFERENZEN
  • KONTAKT
  • HOME
  • PORTFOLIO
  • ÜBER UNS
    • PROFIL
    • TEAM
    • MITARBEIT
    • AUSZEICHNUNGEN / PUBLIKATIONEN
    • KUNDEN / REFERENZEN
  • KONTAKT

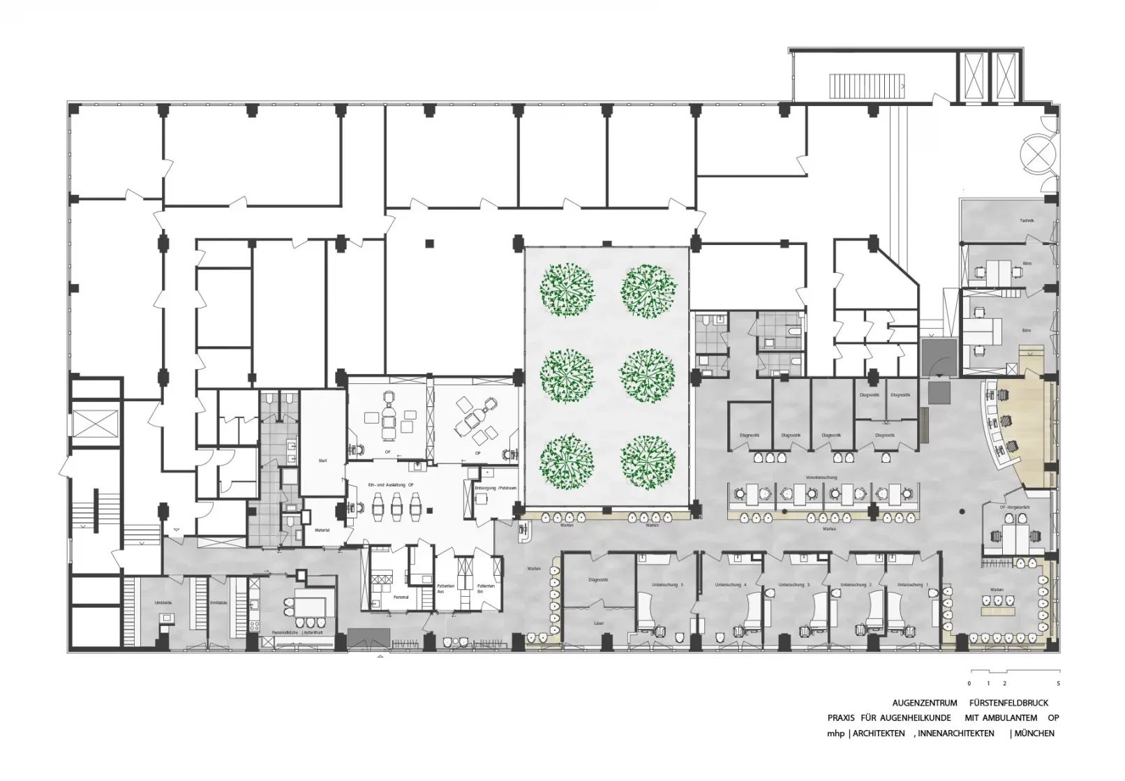
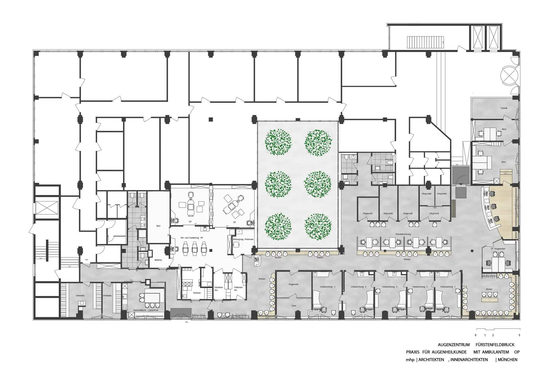
PRAXIS & KLINIK FÜR AUGENHEILKUNDE

Praxis mit ambulantem OP auf einer Fläche von ca. 700 m².

UNSERE LEISTUNGEN

Entwurf
Planung
Gestalterische Oberleitung

Augenheilkunde Praxis Dr. K.
Augenheilkunde Praxis Dr. K.
Augenheilkunde Praxis Dr. K.
. . .

Jakob-Klar-Str. 4
80796 München
089 2880 623-0

[email protected]

Marktplatz 16
84323 Massing
08724 910091

[email protected]

  • HOME
  • PORTFOLIO
  • PROFIL
  • KONTAKT & IMPRESSUM

© mhp 2025
Datenschutzerklärung