SHOWROOM GEBÄUDE BOGNER
MARKENARCHITEKTUR
Auf dem, in 70 Jahren sich heterogen entwickelten Betriebsgelände soll ein neues Gebäude errichtet werden, das zum einen sämtliche, derzeit verteilten Kollektions-Showrooms aufnimmt und zum anderen zu einer Optimierung der Außenwirkung, als auch der gesamten Eingangssituation des Unternehmensgeländes beiträgt.
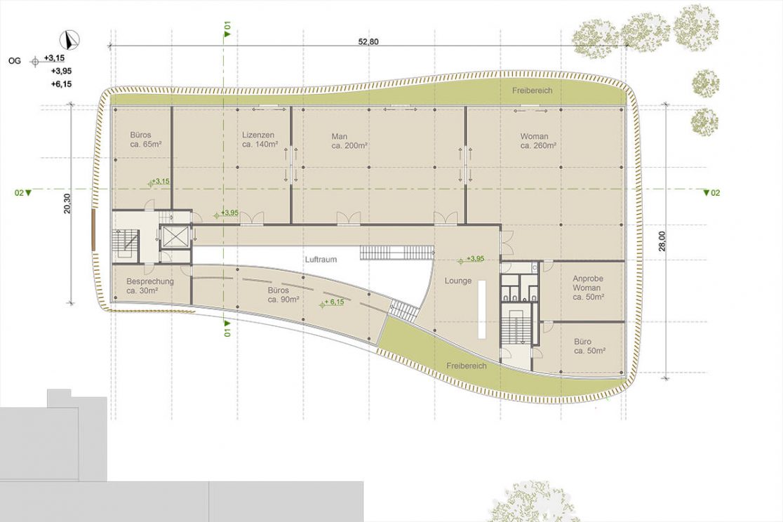
Innerhalb eines polygonen Grundrisses mit einer geschwungenen Eingangsfront entwickeln sich aus einer zweigeschossigen Eingangshalle sämtlich Showrooms, Casino und Verkaufsbüros. Eine vorgelagerte senkrechte Lamellenstruktur, lässt Zwischenräume entstehen, bietet Verschattung und gibt dem Baukörper eine homogene, plastische Wirkung, wodurch sich das Gebäude aus der Vielzahl der vorhandenen Bestandsgebäude deutlich und wohltuend hervorhebt und als das Besucher-Empfangs-Ausstellungsgebäude wahrgenommen wird.
UNSERE LEISTUNGEN
Architektur und Innenarchitektur
Entwurf (Planungsphase)










