ALTBAUWOHNUNG MÜNCHEN SCHWABING

Umbau & Sanierung

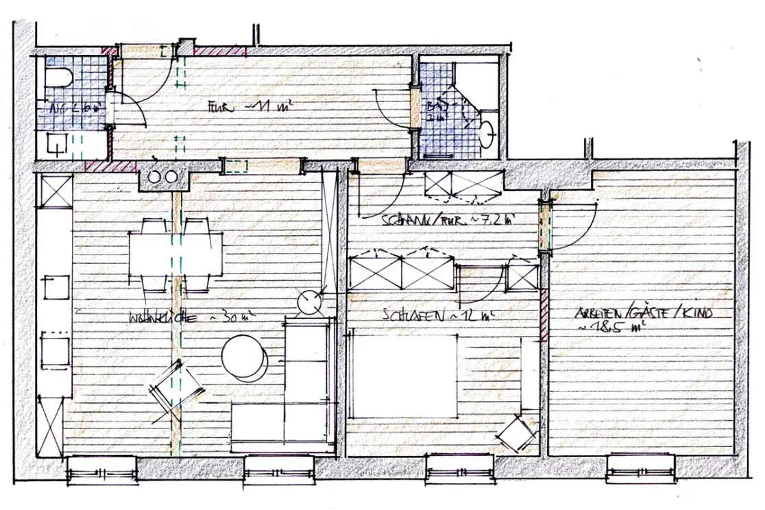
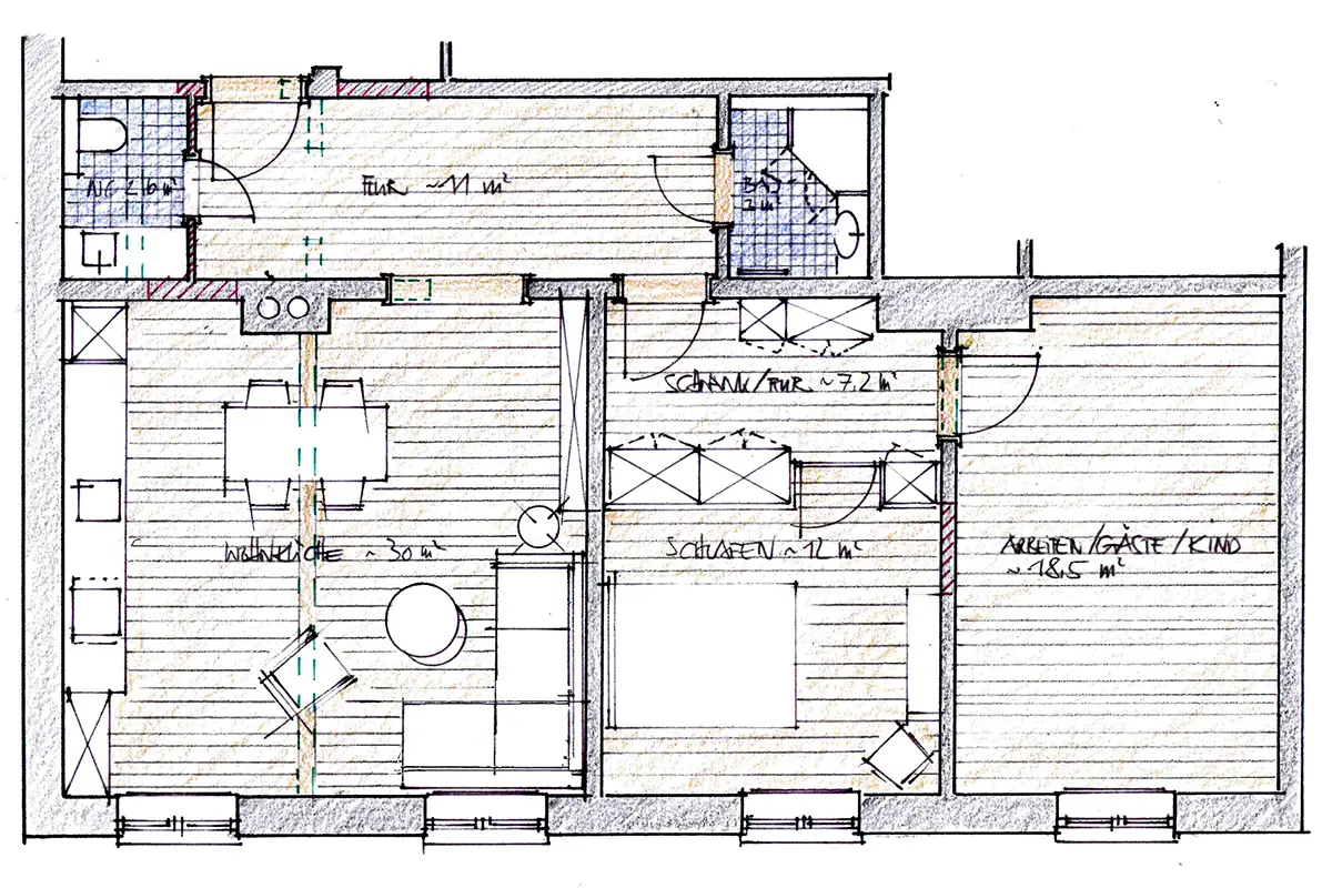
Umbau und Sanierung einer Altbauwohnung in München Schwabing

UNSERE LEISTUNGEN

Innenarchitektur
Entwurf
Planung
Bauleitung