• HOME
  • PORTFOLIO
  • ÜBER UNS
    • PROFIL
    • TEAM
    • MITARBEIT
    • AUSZEICHNUNGEN / PUBLIKATIONEN
    • KUNDEN / REFERENZEN
  • KONTAKT
  • HOME
  • PORTFOLIO
  • ÜBER UNS
    • PROFIL
    • TEAM
    • MITARBEIT
    • AUSZEICHNUNGEN / PUBLIKATIONEN
    • KUNDEN / REFERENZEN
  • KONTAKT

INNENARCHITEKTUR VERWALTUNG

Erweiterung / Umbau / Konzept

BÜRO & VERWALTUNG

Deutscher Verwaltungsitz eines weltweit operierendes Textilherstellers.

 

UNSERE LEISTUNGEN

Entwurf Innenarchitektur

 

mhp | Architekten Innenarchitekten: Wettbewerb Verwaltung
mhp | Architekten Innenarchitekten: Wettbewerb Verwaltung
mhp | Architekten Innenarchitekten: Wettbewerb Verwaltung
mhp | Architekten Innenarchitekten: Wettbewerb Verwaltung
mhp | Architekten Innenarchitekten: Wettbewerb Verwaltung
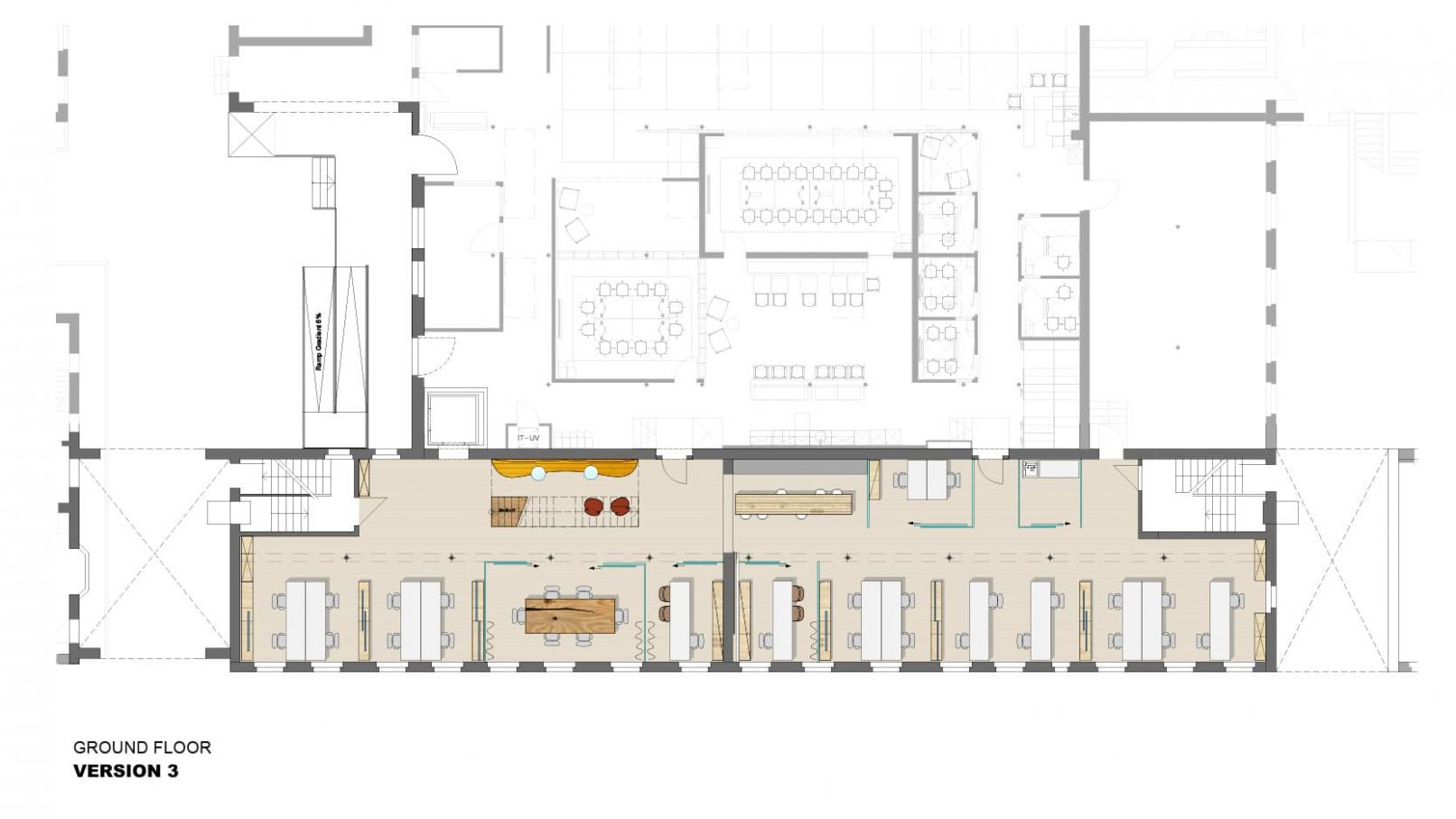
mhp | Architekten Innenarchitekten: Grundriss Verwaltung
mhp | Architekten Innenarchitekten: Grundriss Verwaltung
mhp | Architekten Innenarchitekten: Grundriss Verwaltung
. . .

Jakob-Klar-Str. 4
80796 München
089 2880 623-0

[email protected]

Marktplatz 16
84323 Massing
08724 910091

[email protected]

  • HOME
  • PORTFOLIO
  • PROFIL
  • KONTAKT & IMPRESSUM

© mhp 2025
Datenschutzerklärung