Kernsanierung eines Wohn- und Geschäftshauses
Umbau mit energetischer Kernsanierung eines alten Wohn- und Geschäftshauses am Marktplatz in Massing.
Das langjährig leerstehende Gebäude prägt durch seine zentrale Lage das Ortsbild von Massing.
Planungsziel war es, eine „Neubelebung“ des Gebäudes mit einer neuen erdgeschossigen Gewerbefläche und neue, barrierefreien Wohnungen zu schaffen, ohne eine wesentliche Veränderung der Grundzüge des vorhandenen Erscheinungsbildes am Marktplatz.
Die vorhandenen Fenster- und Türöffnungen wurden deshalb in ihrer horizontalen Abwicklung weitestgehend übernommen und lediglich in der vertikalen Anordnung durch neue Brüstung- und Sturzhöhen angepasst. Auch die drei Garagentor-Öffnungen im östlichen Gebäudeteil wurden in die Fassadengestaltung der neuen Gewerbefläche im EG integriert.
Durch dezente Farbgebung mit weiß abgesetzten Fensterfaschen im Kontrast mit den neuen Fenster- und Fassadenelemente aus Lärchenholz ergibt sich ein der regionalen Bautradition verbundenes und gleichzeitig auch modernes Erscheinungsbild, das sich als neues/altes Ensemble zusammen mit den benachbarten Gebäuden harmonisch in das bekannte Massinger Ortsbild einfügt.
Zur barrierefreien Nutzung des Gebäudes wurden neue Geschoßdecken und teilweise neue Bodenplatten erstellt und ein Aufzug eingebaut.
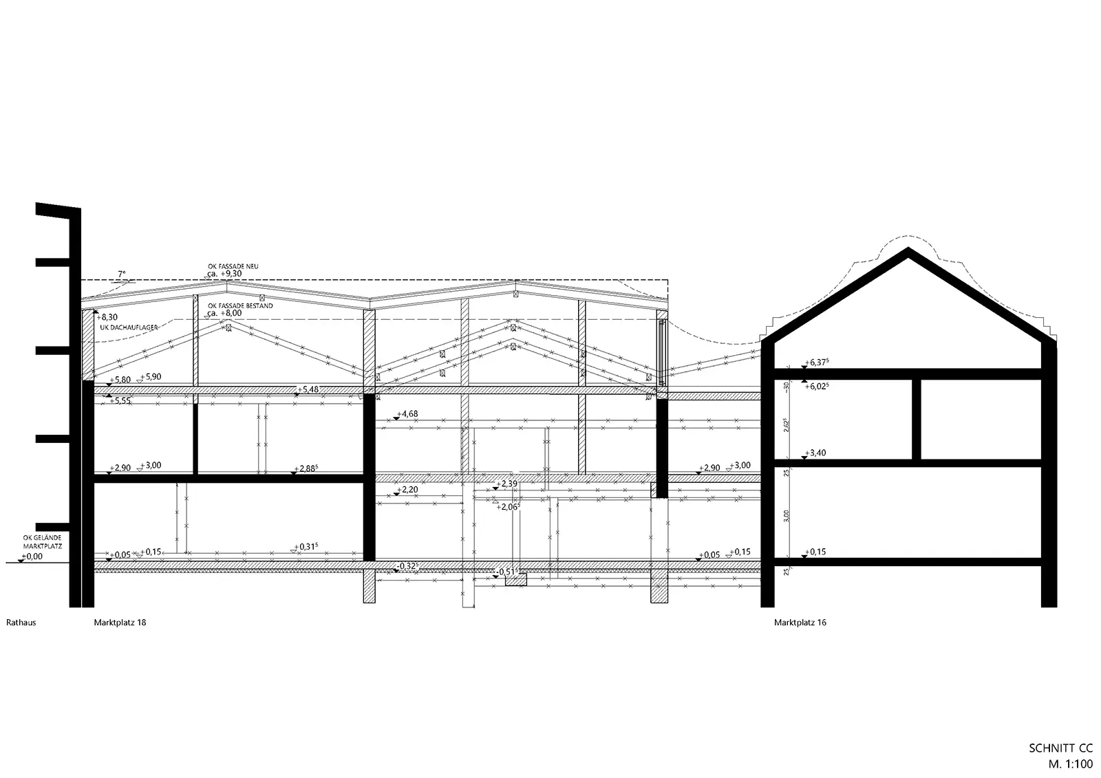
Darüber hinaus konnte durch das Anheben des Dachniveaus um ca. 1,40 m zusätzlicher Wohnraum im zuvor nicht ausgebauten Dachgeschoss geschaffen werden.
UNSERE LEISTUNGEN
Architektur
Entwurf
Planung
Gestalterische Oberleitung







